Вхід на сайт

Ел. пошта:
Пароль:

Реєстрація на сайті

Призвіще: Область:
Ім'я: Населений пункт:
    По батькові: Номер телефону:
    Ел. пошта: Компанія:
      Пароль: Посада:
      Повторіть пароль: Рік початку роботи:
      Фото:
      З правилами розміщення об'єктів погоджуюсь

      Забули пароль?

      Вкажіть ел. пошту — ми надішлемо Вам новий пароль для входу
      Ел. пошта:

      Проблема на сайті

      Закрити
      Ваш e-mail:
      (необов'язково)
      Розкажіть нам, що сталось

      без комісії ул. Олевская, 5 — Здається офіс

      (г. Киев, Святошинский район)

      25000 грн.

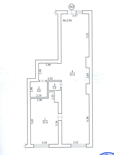
      Загальна площа: 89 кв.м

      Кімнат: 3

      Поверх: 1

      К-ть поверхів: 27

      Здам в оренду нежитлове приміщення в ЖК "Сосновий бір". 1 поверх, окремих вхід. Ідеально під стоматологію, мед центр або салон краси. Є точки підводу води. 25 Квт. S=89,1 кв., 1/27 поверх., H=2.90м. Канікули на ремонт.
      м.Академмістечно 30хв пішки, 5хв на авто.

      Надіслати скаргу

      Закрити
      Поскаржитися на об'єкт «ул. Олевская, 5 (г. Киев, Святошинский район)»
      Ваш коментар:(Необов'язково)
      Ваша скарга буде надіслана ріелтору, що розмістив об'єкт, а також адміністрації сайту АФНУ.
      Ваше ім'я:
      (Обов'язково)
      Ваш e-mail для відповіді:
      (Обов'язково)

      Вам также могут подойти

      ул. Олевская, 5 (г. Киев, Святошинский район) - Здається офіс, 25000 грн. - АФНУ

      Оновлено: 11 грудня 2025

      Розміщено: 19 серпня 2025

      Здається офіс

      3 кімн., площа 89, поверх 1/27

      г. Киев, ул. Олевская, 5

      25000 грн. без комісії

      Піддубняк Юлія Михайлівна

      Директор (АН "Мегариелти")

      Оренду приміщення вільного призначення. ЖК Сосновий бір, вул. Олевська, 5
      1 поверх. Окремий вхід. Може бути офіс, стоматологія, салон краси, кафе та ін.
      89,1 кв.м. Здається офіційно, можна юр. особі.…

      Детальніше

      ул. Олевская, 5 (г. Киев, Святошинский район) - Здається офіс, 25000 грн. - АФНУ

      Оновлено: 11 грудня 2025

      Розміщено: 19 серпня 2025

      Здається офіс

      3 кімн., площа 89, поверх 1/27

      г. Киев, ул. Олевская, 5

      25000 грн. без комісії

      Піддубняк Юлія Михайлівна

      Директор (АН "Мегариелти")

      Оренду приміщення вільного призначення. ЖК Сосновий бір, вул. Олевська, 5
      1 поверх. Окремий вхід. Може бути офіс, стоматологія, салон краси, кафе та ін.
      89,1 кв.м. Здається офіційно, можна юр. особі.…

      Детальніше

      ул. Олевская, 5 (г. Киев, Святошинский район) - Здається офіс, 25000 грн. - АФНУ

      Оновлено: 11 грудня 2025

      Розміщено: 19 серпня 2025

      Здається офіс

      3 кімн., площа 89, поверх 1/27

      г. Киев, ул. Олевская, 5

      25000 грн. без комісії

      Піддубняк Юлія Михайлівна

      Директор (АН "Мегариелти")

      Оренду приміщення вільного призначення. ЖК Сосновий бір, вул. Олевська, 5
      1 поверх. Окремий вхід. Може бути офіс, стоматологія, салон краси, кафе та ін.
      89,1 кв.м. Здається офіційно, можна юр. особі.…

      Детальніше

      Коментарі