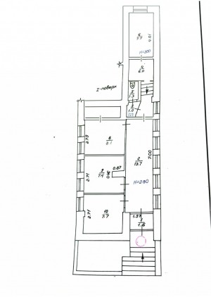
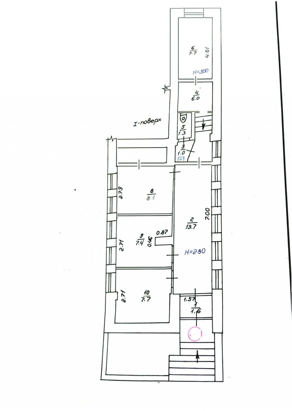
Продається офісне приміщення на Подолі! Адреса: м. Полтава, вул. Небесної Сотні (зуп. "Оптика", район маг. АТБ) Загальна площа: 56,8 м² Формат: 4 окремі кабінети + коридор + санвузол Характеристики приміщення: • 1-й поверх • окремий вхід з фасаду будинку • зручна парковка для авто • висота стелі – 3,05 м Планування: • Кабінет 1 – 7,7 м² • Кабінет 2 – 7,4 м² • Кабінет 3 – 8,1 м² • Кабінет 4 – 7,7 м² Комунікації: • централізоване опалення • холодне водопостачання та водовідведення • електроенергія ✅ Ідеально під офіс, представництво компанії, навчальний центр чи салон послуг.