Вхід на сайт

Ел. пошта:
Пароль:

Реєстрація на сайті

Призвіще: Область:
Ім'я: Населений пункт:
    По батькові: Номер телефону:
    Ел. пошта: Компанія:
      Пароль: Посада:
      Повторіть пароль: Рік початку роботи:
      Фото:
      З правилами розміщення об'єктів погоджуюсь

      Забули пароль?

      Вкажіть ел. пошту — ми надішлемо Вам новий пароль для входу
      Ел. пошта:

      Проблема на сайті

      Закрити
      Ваш e-mail:
      (необов'язково)
      Розкажіть нам, що сталось

      ул. Пушкина — Продається торгівельний майданчик

      (г. Кривой Рог, Центрально-Городской район)

      60000 $

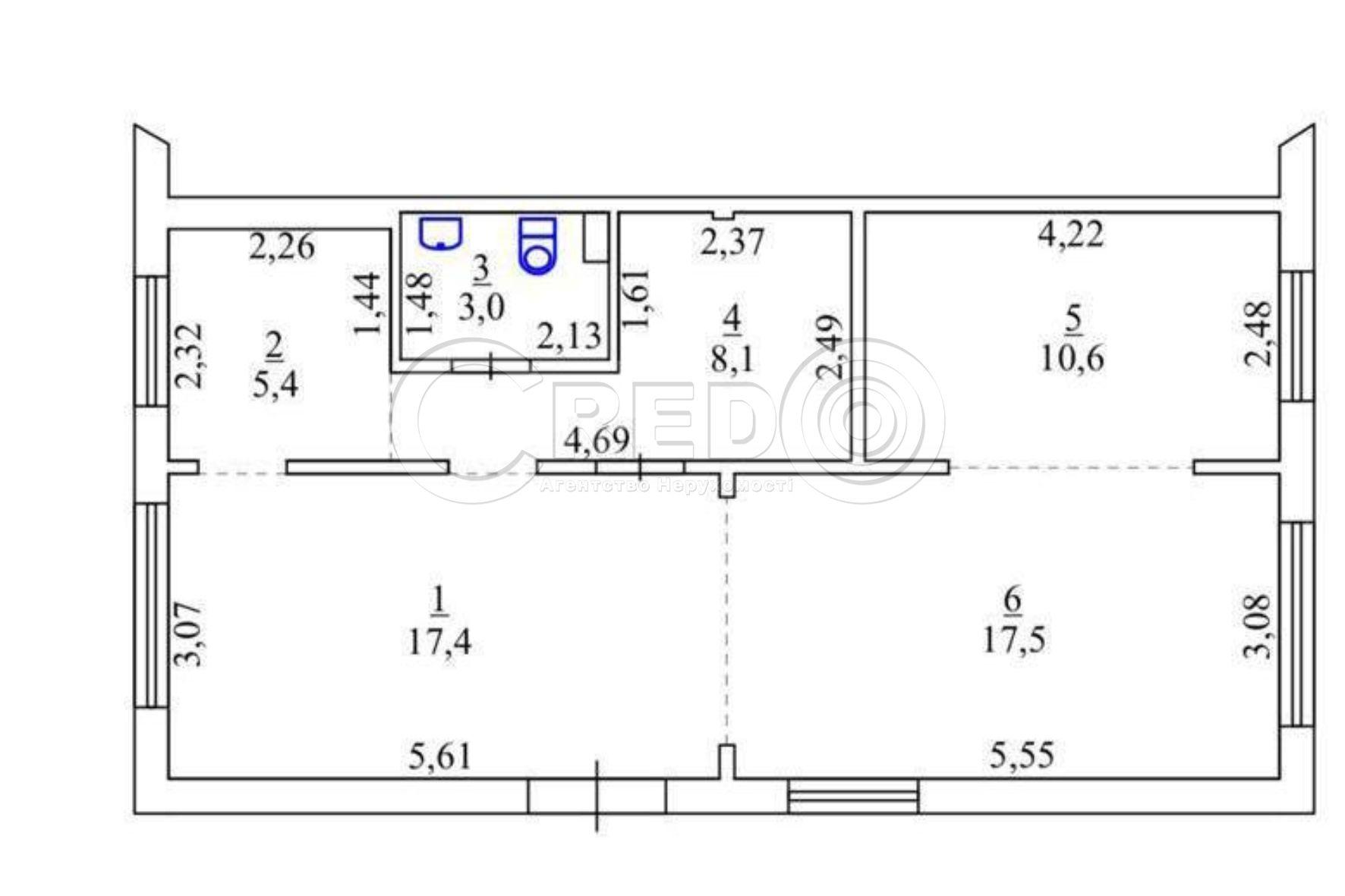
      Загальна площа: 62 кв.м

      Поверх: 1

      К-ть поверхів: 5

      Продаж магазину по вул. Гірничих інженерів (Пушкіна)
      - Центрально-Міський район
      - "червона лінія"
      - новий, капітальний ремонт

      Про об’єкт:
      - загальна площа-62 кв.м
      - торгівельна зала-34,9 кв.м
      - висота потолків- 2.60 м
      - центральний вхід
      - перший поверх 5-ти поверхового будинку
      - окремий вхід

      Комунікації:
      - центральне електропостачання 15 кВт; 220 Вт
      - центральне водопостачання, каналізація
      - центральне опалення

      Логістична розв’язка:
      - магазин розташований біля площі Визволення
      - "червона лінія"
      - безліч комерційних магазинів
      - учбові заклади
      - автомобільний та пішохідний трафік
      - проїздна частина міста

      Продаж 60 000у.о.

      За будь-якими питаннями за цією або схожими пропозиціями звертайтесь за номером телефону 067 696 16 51.

      Надіслати скаргу

      Закрити
      Поскаржитися на об'єкт «ул. Пушкина (г. Кривой Рог, Центрально-Городской район)»
      Ваш коментар:(Необов'язково)
      Ваша скарга буде надіслана ріелтору, що розмістив об'єкт, а також адміністрації сайту АФНУ.
      Ваше ім'я:
      (Обов'язково)
      Ваш e-mail для відповіді:
      (Обов'язково)

      Вам также могут подойти

      ул. Харитонова (г. Кривой Рог, Центрально-Городской район) - Продається торгівельний майданчик, 57000 $ - АФНУ

      Оновлено: 20 січня

      Розміщено: 13 травня 2025

      Продається торгівельний майданчик

      площа 103, поверх 1/5

      г. Кривой Рог, ул. Харитонова

      57000 $

      Літвинова Ірина Вікторівна

      Продаж приміщення, вул. П. Калнишевського, Ц.-Міський р-н

      Технічні характеристики:
      - Нежитлове приміщення заг.пл. - 103,17кв.м.
      - Вбудоване в 1 поверх 5 поверхового будинку.
      - Розташоване в торці будинку.
      - Вітражні…

      Детальніше

      пр. Победы (г. Кривой Рог, Ингулецкий район) - Продається торгівельний майданчик, 70000 $ - АФНУ

      Оновлено: 23 січня

      Розміщено: 12 вересня 2016

      Продається торгівельний майданчик

      площа 335, поверх 1/2

      г. Кривой Рог, пр. Победы

      70000 $

      Літвинова Ірина Вікторівна

      Пропонуємо на продаж 1/2 частину окремо розташованої 2-х поверхової торгово-офісної будівлі по пр. Перемоги (Інгулець, центр)

      Про об'єкт:
      - загальна площа - 335,45 кв.м.
      - 1-й поверх – 70кв.м.
      -…

      Детальніше

      ул. Корнейчука (г. Кривой Рог, Саксаганский район) - Продається торгівельний майданчик, 59000 $ - АФНУ

      Оновлено: 13 лютого

      Розміщено: 16 серпня 2021

      Продається торгівельний майданчик

      площа 113, поверх 1/9

      г. Кривой Рог, ул. Корнейчука

      59000 $

      Літвинова Ірина Вікторівна

      Продається нежитлове приміщення по вул. І.Авраменка (Корнійчука).

      Технічні характеристики:
      - Приміщення розташоване на 1/9-ти пов. будинку.
      - Загальна площа 113,8кв.м.,

      Планування об’єкту: великий хол, кабінети, кухня, підсобне приміщення, сан/вузол.

      Комунікації:…

      Детальніше

      Коментарі