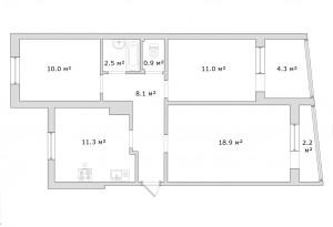
Основні характеристики: - житлові кімнати - 3 - проектування будівлі - чешка - поверх - 8 - поверховість будівлі - 10 - наявність ліфта - є - площа квартири - 70 м2 - площа кухні - 11 м2 - тип кімнат - окремі - наявність балкона / лоджії - є - опалення - автономне - стан - житловий
У вказану вартість вже входять: - меблі (частково) - техніка (частково)
Основні характеристики: - житлові кімнати - 3 - поверх - 3 - поверховість будівлі - 5 - розташування - не кутова - наявність балкона / лоджії - є - стан…
Основні характеристики: - житлові кімнати - 3 - поверх - 3 - поверховість будівлі - 5 - розташування - не кутова - наявність балкона / лоджії - є - стан…
Основні характеристики: - житлові кімнати - 3 - проектування будівлі - спец проект - рік побудови - 1993 - матеріал стін - цегла - поверх - 8 - поверховість будівлі…