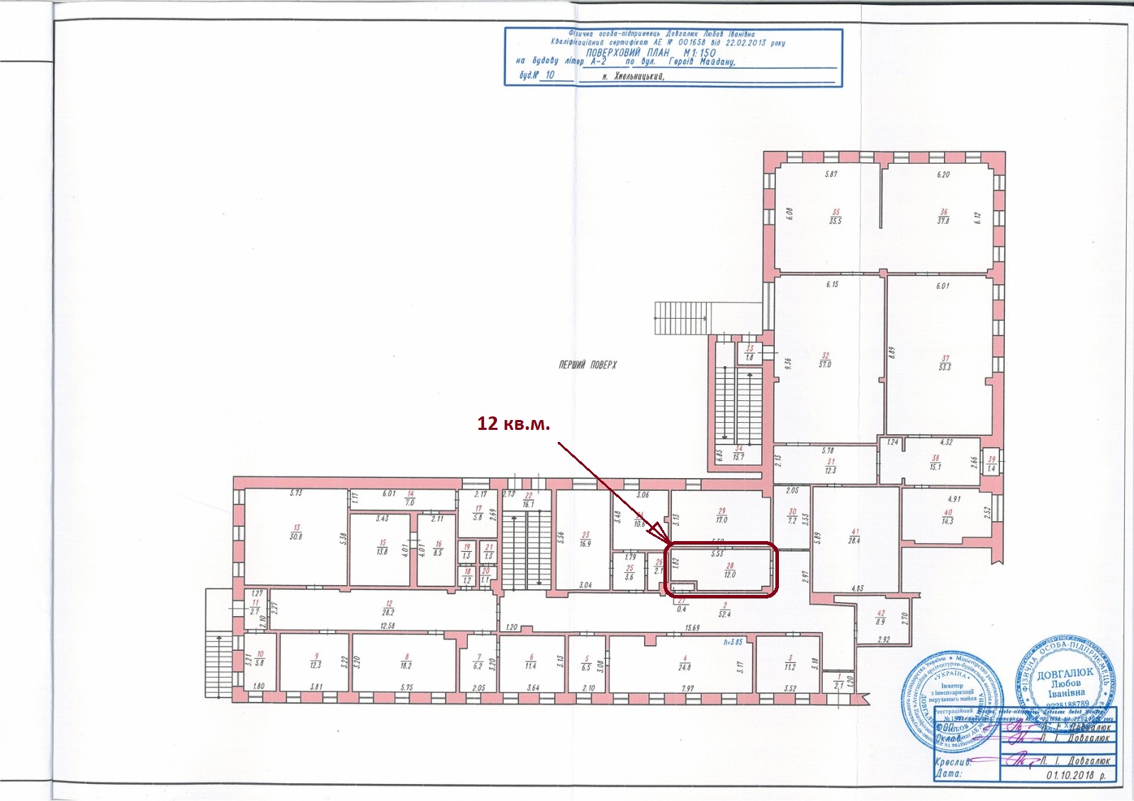
Здам в оренду приміщення. Центр, вул.Героїв Майдану (Театральна) 10. (Поруч з податковою) 1-й поверх. Цілодобовий доступ. Площа: 12 кв.м. Вартість: 2200грн/місяць + світло по лічильнику
Санвузол на поверсі. Без опалення. Без меблів. Вільне з 15 лютого. Показ по попередній домовленості.
Здам в оренду приміщення 12 м.кв. Центр, вул. Героїв Майдану (Театральна) 10. (Поруч з податковою). 1й поверх. Приміщення Площею 12 м.кв., правильної прямокутної форми, кабінет без вікон. Цілодобовий доступ. Санвузол…