Вхід на сайт

Ел. пошта:
Пароль:

Реєстрація на сайті

Призвіще: Область:
Ім'я: Населений пункт:
    По батькові: Номер телефону:
    Ел. пошта: Компанія:
      Пароль: Посада:
      Повторіть пароль: Рік початку роботи:
      Фото:
      З правилами розміщення об'єктів погоджуюсь

      Забули пароль?

      Вкажіть ел. пошту — ми надішлемо Вам новий пароль для входу
      Ел. пошта:

      Проблема на сайті

      Закрити
      Ваш e-mail:
      (необов'язково)
      Розкажіть нам, що сталось

      ул. Рюмина, 2 — Продається квартира в новобудові

      (г. Николаев, Центральный район)

      39512 $

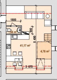
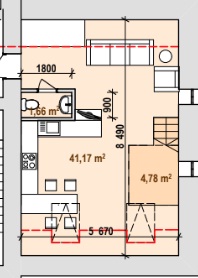
      Загальна площа: 45 кв.м

      Жила площа: 35 кв.м

      Площа кухні: 7 кв.м

      Кімнат: 1

      Поверх: 3

      К-ть поверхів: 4

      Продается квартира в престижной новостройке Замок Наваль в центре города. Картира утеплена по последнему слову техники. Автономное отопление, двух-тарифный электрический счетчик, теплый водяной пол. К услугам покупателей удобные наземные парковочные места и зона отдыха с детской площадкой. В нескольких минутах ходьбы, на проспекте перед Центральным рынком, находятся остановка общественного транспорта, продовольственный маркет, супермаркет бытовой техники, магазины, кафе и банковские отделения.

      Надіслати скаргу

      Закрити
      Поскаржитися на об'єкт «ул. Рюмина, 2 (г. Николаев, Центральный район)»
      Ваш коментар:(Необов'язково)
      Ваша скарга буде надіслана ріелтору, що розмістив об'єкт, а також адміністрації сайту АФНУ.
      Ваше ім'я:
      (Обов'язково)
      Ваш e-mail для відповіді:
      (Обов'язково)

      Коментарі