Вхід на сайт

Ел. пошта:
Пароль:

Реєстрація на сайті

Призвіще: Область:
Ім'я: Населений пункт:
    По батькові: Номер телефону:
    Ел. пошта: Компанія:
      Пароль: Посада:
      Повторіть пароль: Рік початку роботи:
      Фото:
      З правилами розміщення об'єктів погоджуюсь

      Забули пароль?

      Вкажіть ел. пошту — ми надішлемо Вам новий пароль для входу
      Ел. пошта:

      Проблема на сайті

      Закрити
      Ваш e-mail:
      (необов'язково)
      Розкажіть нам, що сталось

      проспект Лушпы, 5 — Продається квартира в новобудові

      (г. Сумы, Заречный район)

      28000 $

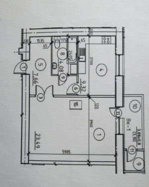
      Загальна площа: 50 кв.м

      Жила площа: 24 кв.м

      Площа кухні: 10 кв.м

      Кімнат: 1

      Поверх: 10

      К-ть поверхів: 11

      Продаем 1 комнатную квартиру в ЖК Эспланада.
      Площадь квартиры 50/24\10
      Этаж 10\11 к
      Дом кирпичный, не угловая
      Автономное отопление
      Состояние от строителей
      - пластиковые новые окна
      - радиаторы новые
      - дом утеплен по всему фасаду
      - входная дверь металлическая
      - стяжка и штукатурка от строителей
      Дом сдается 2й квартал этого года. Продажа квартиры по переуступке.
      Звоните покажем в любое рабочее время (кроме выходных)

      Надіслати скаргу

      Закрити
      Поскаржитися на об'єкт «проспект Лушпы, 5 (г. Сумы, Заречный район)»
      Ваш коментар:(Необов'язково)
      Ваша скарга буде надіслана ріелтору, що розмістив об'єкт, а також адміністрації сайту АФНУ.
      Ваше ім'я:
      (Обов'язково)
      Ваш e-mail для відповіді:
      (Обов'язково)

      Коментарі