без комісії
ул. Авиационная, 39 — Продається квартира в новобудові
(г. Харьков, Дзержинский район)
2644070 грн.
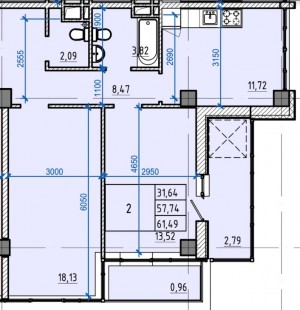
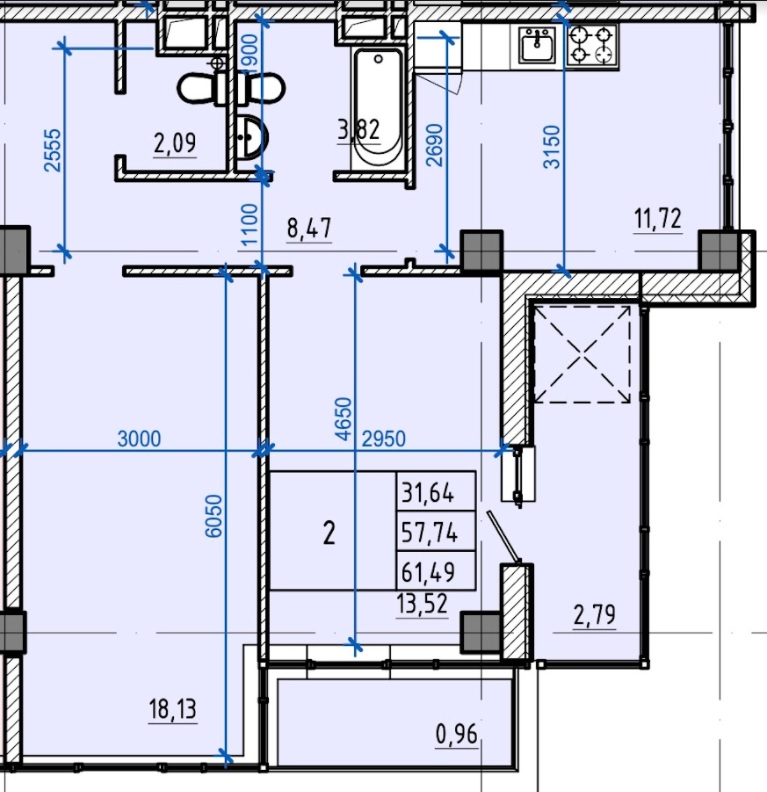
Загальна площа: 61.49 кв.м
Жила площа: 32 кв.м
Площа кухні: 12 кв.м
Кімнат: 2
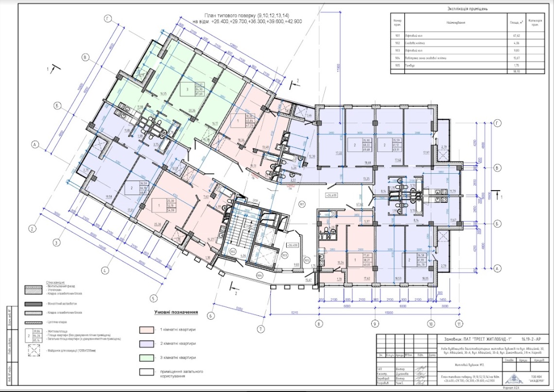
Поверх: 7
К-ть поверхів: 16
БЕЗ КОМІСІЇ, за ціною забудовника, продається 2-кімнатна квартира ЖК Авіаційна, за адресою вул., Авіаційна, 39. В радіусі 2 км. від комплексу розташовані: метро Ботанічний сад та Наукова, кафе, ресторани, бари, спорткомплекс "Динамо", парк ім. Горького, школи і садочки. На території самого комплексу планують дитячі ігровий та спортивний майданчик з тротуарами та озелененням, підземний паркінг. - Квартира розташована в будинку № 2 - здача в 4 кварталі 2022 року. Площа квартири: Загальна площа - 61.49 м²; Житлова площа - 32 м²; Кухня - 12 м². - ПОТРІБНО КАПІТАЛЬНИЙ РЕМОНТ. КОМПЛЕКТАЦІЯ КВАРТИР: • встановлені перегородки як зазначено на плані; • металопластикові вікна; • горизонтальна розводка опалення та радіатори опалення (є можливість поставити лічильник на тепло, регулятори на батареї і контролювати подачу тепла в квартиру індивідуально); • вхідні залізні двері; • лічильник на електрику; • підведені комунікації (холодна, гаряча вода); • каналізація; • заведено електрику; • зроблено зовнішнє утеплення стін (утеплювач мінеральна вата 100 мм). - Буду радий Вас чути): Пн-Пт - 8: 00-20: 00. Сб-Нд - II: 00-20: 00 Святкові дні - вихідний.