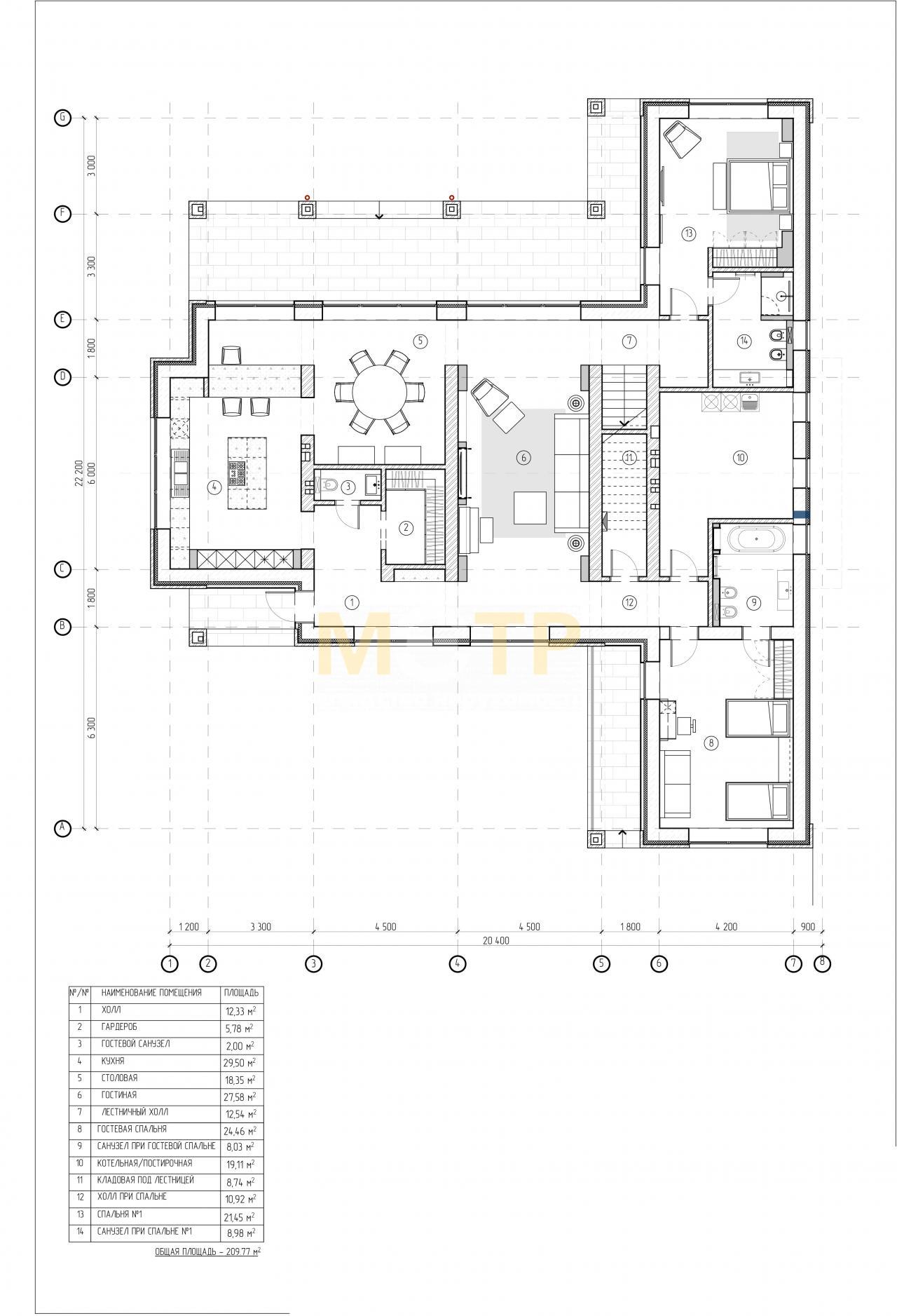
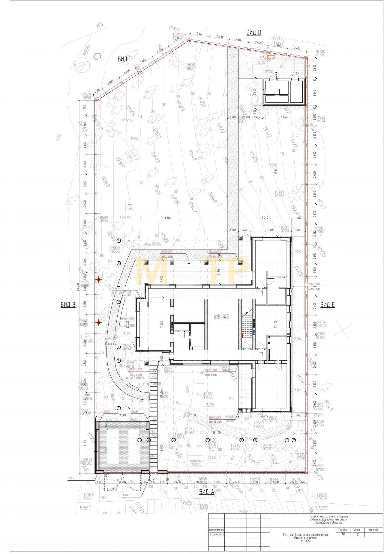
Продам продуманий до дрібниць, побудований за індивідуальним проектом будинок преміальної якості у відмінному відлюдному місці елітного закритого котеджного селища, що охороняється, КМ Лісне. Селище знаходиться всього в 1 км від окружної, розташоване в екологічно чистому районі, на галявині лісового масиву. КП Лісове це сучасні рішення як у будівництві так і у благоустрої - цілодобово охороняється, має свою інфраструктуру: асфальтовані вулиці, великий громадський басейн (без хлору і хімії, використовується біофільтр) з фитнес центром, ресторан, в 3-х хвилинах ходьби від в'їзду до селища розташована автобусна зупинка. Район місця розташування будинку - котеджне містечко Лісне, знаходиться у стадії активного розвитку. Ще 3-4 роки тому тут було порожньо, але із-за свого вдалого місця розташування (всього 15 хвилин їзди до парку Горького) розташування у поєднанні з екологічністю і мальовничістю місцевості привели до того, що зараз КМ Лісне - це один з найбільш престижних і затребуваних котеджних містечок, купити будинок в якому мріє багато покупців, які бажають придбати елітний котедж в Харкові і найближчому передмісті. Основні характеристики і переваги будинку в Лісному: - Котедж побудований за ексклюзивним індивідуальним проектом в сучасному європейському стилі. Є повний комплект проектної документації. Будівництво велося під ретельним авторським наглядом архітектора, в строгій відповідності з проектною документацією. -При проектуванні і будівництві будинку важлива увага приділялася особливостям, які дозволять власникам зберегти здоров'я. Основні акценти - вентиляція приміщень (з передбаченою рекуперацією), наявність великої кількості природного освітлення, герметизація будівельних конструкцій для захисту майбутніх мешканців будинку від вологи, виконане утеплення фундаменту, а також протирадоновий захист (радон-инертный газ без кольору і запаху, що виділяється з товщі землі і деяких будматеріалів та є джерелом радіоактивного випромінювання). -Основний матеріал стін -червона керамічна цегла. Це найнадійніший і затребуваний матеріал для стін будинку, що пройшов випробовування віками. Відповідно до проектної документації передбачено утеплення зовнішніх стін мінеральною ватою високої щільності і облицювання клінкерною цеглою. -Фальцева покрівля -гарантує найвищу із вживаних на ринку ступінь герметизації у поєднанні із провітрюванням. Забудьте про протікання даху і конденсат в утеплювачі. Гарантія виробника - 25 років! -Планувальне рішення. Основний житловий поверх -перший, включає простору вітальню, велику окрему кухню 30 кв. м., їдальню 18 кв. м., дві спальні 21 і 24 кв. м., кожна зі своїм великим санвузлом (8 і 9 кв. м.) плюс невеликий гостьовий санвузол, гардероб, котельну - кімнату для прання 19 кв. м. Більшість приміщень поверху мають вихід на терасу (близько 50 кв. м.). Другий поверх - відмінний простір для самоти і релакса, включає спальню 19 кв. м., санвузлом 15 кв. м., спортзалом 14 кв. м. і родзинка - видова тераса другого рівня, що складається з критої і закритої частин, загальною площею близько 80 кв. м. Є повна дизайнерська концепція ремонту з розставлянням меблів. - Великі панорамні вікна в усіх житлових кімнатах забезпечать не лише велику кількість природнього світла, але й відмінний краєвид на ділянку, та мальовничу місцевість Лісного, що оточує містечко. - На приватизованій ділянці 15,6 соток розташований невеликий (близько 14 кв. м.) гостьовий будинок (чи кімната охорони). Оскільки будинок розташований в крайньому ряду - є можливість організувати додатковий заїзд на ділянку (не через територію селища). На ділянці також виконаний дренаж для відведення зайвої вологи від будинку. Крім того в проекті врахована розводка усіх комунікацій. Централізований водопровід заведений у будинок, також є свердловина для поливу. Інженерні комунікації розведені по будинку і ділянці. Залишилося облаштувати септик (усі виведення готові) і, при необхідності, підключити газ. Заведена електрика 15 кВт. з можливістю збільшення потужності. - Нині будинок знаходиться у будівельному стані. Є фото стадії будівництва, на яких добре видна конструкція фундаменту. Додаткова інформація і фото - по запиту. Якщо ви хочете жити у будинку преміальної якості, в тихому і мальовничому місці елітного котеджного селища, в 15 хвилинах їзди до центру Харкова - дзвоніть! Коміссію оплачує власник, партнеру- 2%.