Вхід на сайт

Ел. пошта:
Пароль:

Реєстрація на сайті

Призвіще: Область:
Ім'я: Населений пункт:
    По батькові: Номер телефону:
    Ел. пошта: Компанія:
      Пароль: Посада:
      Повторіть пароль: Рік початку роботи:
      Фото:
      З правилами розміщення об'єктів погоджуюсь

      Забули пароль?

      Вкажіть ел. пошту — ми надішлемо Вам новий пароль для входу
      Ел. пошта:

      Проблема на сайті

      Закрити
      Ваш e-mail:
      (необов'язково)
      Розкажіть нам, що сталось

      без комісії ул. Глубочицкая, 43 — Продається квартира

      (г. Киев, Шевченковский район)

      82000 $

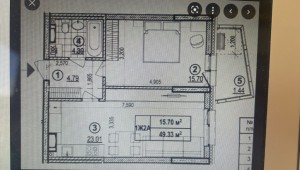
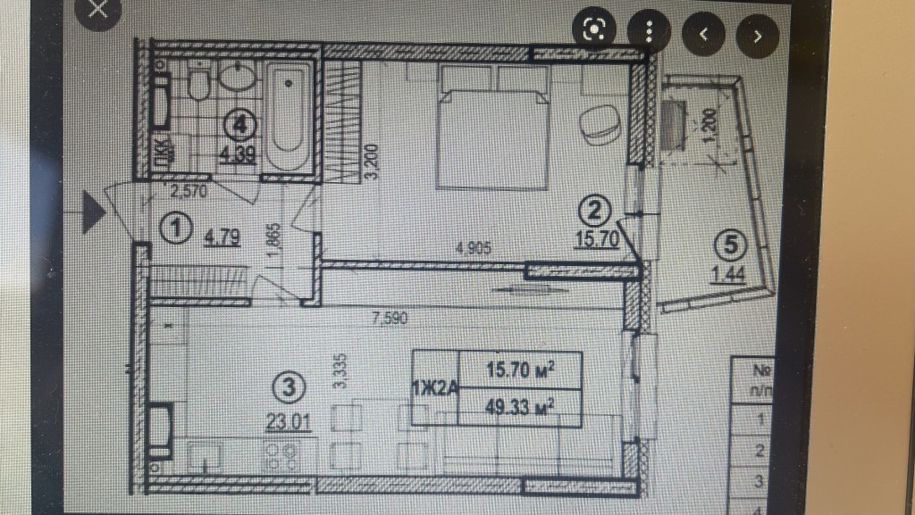
      Загальна площа: 49.33 кв.м

      Жила площа: 15.7 кв.м

      Площа кухні: 23.01 кв.м

      Кімнат: 1

      Поверх: 5

      К-ть поверхів: 18

      ЖК Mirax БЕЗ КОМИССИИ

      5 минут и вы на Подоле, в исторической части города.

      Дом 2 секция 1


      Идеальная планировка 49.33 кв.м. - кухня – студия (23 метра) и спальня, квартира не крайняя, будет тепло, идеально подойдет как для проживания, так и для перепродажи или перепланировании на 2 студии.

      В комплексе предусмотрен пятиуровневый паркинг с электрозарядными станциями.

      Продажа по переуступке

      82000 $ Без комиссии СПП

      Готовность дома 95% , ввод в эксплуатацию 2 квартал 2022 года

      Надіслати скаргу

      Закрити
      Поскаржитися на об'єкт «ул. Глубочицкая, 43 (г. Киев, Шевченковский район)»
      Ваш коментар:(Необов'язково)
      Ваша скарга буде надіслана ріелтору, що розмістив об'єкт, а також адміністрації сайту АФНУ.
      Ваше ім'я:
      (Обов'язково)
      Ваш e-mail для відповіді:
      (Обов'язково)

      Коментарі