Вхід на сайт

Ел. пошта:
Пароль:

Реєстрація на сайті

Призвіще: Область:
Ім'я: Населений пункт:
    По батькові: Номер телефону:
    Ел. пошта: Компанія:
      Пароль: Посада:
      Повторіть пароль: Рік початку роботи:
      Фото:
      З правилами розміщення об'єктів погоджуюсь

      Забули пароль?

      Вкажіть ел. пошту — ми надішлемо Вам новий пароль для входу
      Ел. пошта:

      Проблема на сайті

      Закрити
      Ваш e-mail:
      (необов'язково)
      Розкажіть нам, що сталось

      без комісії ул. Леваневского — Продається квартира

      (г. Полтава, Октябрьский район)

      47000 $

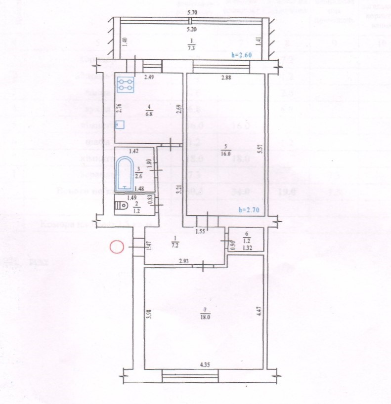
      Загальна площа: 60.3 кв.м

      Жила площа: 34 кв.м

      Площа кухні: 6.8 кв.м

      Кімнат: 2

      Поверх: 1

      К-ть поверхів: 4

      Продаж 2 кімнатної квартири в будинку на 12 квартир з індивідуальним плануванням з закритим двором в Центрі в р-ні юридичної академії Ярослава Мудрого по вул. Леваневського

      Характеристика квартири:
      - загальна площа 60,3 м2;
      - житлова площа 34,0 м2 (кімнати окремі 18 м2+ 16 м2);
      - кухня 6,8 м2;
      - лоджія 7,3 м2 ;
      - 1 поверх в 4 поверховому будинку, не кутова;
      - висота стелі Н= 2, 7 м, перекриття з/б;
      - є підвал
      Комунікації:
      - централізовані;
      - лічильники на воду, світло, газ.
      Стан:
      - вікна м/п
      - ремонту 5-7 років

      Вартість квартири $47000
      БЕЗ КОМІСІЙНИХ АН

      Надіслати скаргу

      Закрити
      Поскаржитися на об'єкт «ул. Леваневского (г. Полтава, Октябрьский район)»
      Ваш коментар:(Необов'язково)
      Ваша скарга буде надіслана ріелтору, що розмістив об'єкт, а також адміністрації сайту АФНУ.
      Ваше ім'я:
      (Обов'язково)
      Ваш e-mail для відповіді:
      (Обов'язково)

      Вам также могут подойти

      бул. Богдана Хмельницкого (г. Полтава, Ленинский район) - Продається квартира, 50000 $ - АФНУ

      Оновлено: 6 січня

      Розміщено: 22 травня 2024

      Продається квартира

      2 кімн., площа 47.1/26.9/8, поверх 5/9

      г. Полтава, бул. Богдана Хмельницкого

      50000 $

      Остапченко Александр Степанович

      соучредитель (Агентство недвижимости "Альянс риэлти" Полтава)

      Продаж 2 кімнатної квартири на ближній Леваді по проспекту Богдана Хмельницького (поряд з дитячою обласною лікарнею), з окремими кімнатами та індивідуальним лічильником на опалення
      Характеристика квартири:
      - загальна площа 47,1…

      Детальніше

      ул. Великотырновская, 29 (г. Полтава, Киевский район) - Продається квартира, 39000 $ - АФНУ

      Оновлено: 6 січня

      Розміщено: 27 листопада 2025

      Продається квартира

      2 кімн., площа 44/30/5, поверх 4/5

      г. Полтава, ул. Великотырновская, 29

      39000 $ без комісії

      Остапченко Александр Степанович

      соучредитель (Агентство недвижимости "Альянс риэлти" Полтава)

      ПРОДАЖ 2-КІМНАТНОЇ КВАРТИРИ
      м-н Половки, р-н зупинки “Бібліотека”, вул. Великотирнівська
      Характеристика об’єкта:
      • Загальна площа — 44,6 кв.м
      • Житлова площа — 30,4 кв.м
      • Кухня — 5 кв.м
      •…

      Детальніше

      Коментарі