Вхід на сайт

Ел. пошта:
Пароль:

Реєстрація на сайті

Призвіще: Область:
Ім'я: Населений пункт:
    По батькові: Номер телефону:
    Ел. пошта: Компанія:
      Пароль: Посада:
      Повторіть пароль: Рік початку роботи:
      Фото:
      З правилами розміщення об'єктів погоджуюсь

      Забули пароль?

      Вкажіть ел. пошту — ми надішлемо Вам новий пароль для входу
      Ел. пошта:

      Проблема на сайті

      Закрити
      Ваш e-mail:
      (необов'язково)
      Розкажіть нам, що сталось

      без комісії Полтавський Шлях вулиця, 184 — Продається квартира в новобудові

      (г. Харьков, Ленинский район)

      31000 $

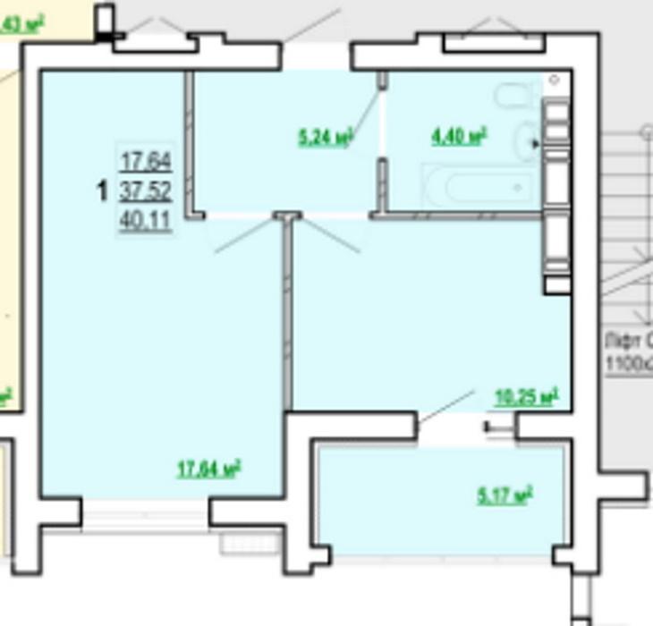
      Загальна площа: 40 кв.м

      Жила площа: 17 кв.м

      Площа кухні: 10 кв.м

      Кімнат: 1

      Поверх: 7

      К-ть поверхів: 9

      Без комісії!
      Продам 1-квартиру в ЖК Казка (Сказка), Полтавський шлях.
      Будинок 8 секція 2. Будинок зданий в грудні 2021 року.

      До ст метро Холодна гора 15 хв пішки.

      Код об'єкта SF-2-178-019

      Комплекс розташований біля станції метро Холодна гора. Забудовник Житлобуд-1.

      Поруч вся необхідна інфраструктура: метро, супермаркети Клас та Рост, ринок Казка, школи, дитячі садки, зупинка громадського транспорту.

      Забудовник Житлобуд-1.

      Будинок 8 секція 2. Здан в грудні 2021р.
      Переуступка.

      7-й поверх 9-ти поверхового будинку.

      Загальна площа: 40,11 кв.м, окрема кімната - 17,6 кв.м, кухня – 10,25 кв.м із лоджією 5,17 кв.м.
      Квартира у будівельному стані.

      Багаторівневий паркінг, гостьова парковка.

      Відкритий двір, дитячий майданчик, в одному з будинків комплексу буде розміщено дитячий садок.

      Вартість - $31 тис.

      Надіслати скаргу

      Закрити
      Поскаржитися на об'єкт «Полтавський Шлях вулиця, 184 (г. Харьков, Ленинский район)»
      Ваш коментар:(Необов'язково)
      Ваша скарга буде надіслана ріелтору, що розмістив об'єкт, а також адміністрації сайту АФНУ.
      Ваше ім'я:
      (Обов'язково)
      Ваш e-mail для відповіді:
      (Обов'язково)

      Коментарі