Вхід на сайт

Ел. пошта:
Пароль:

Реєстрація на сайті

Призвіще: Область:
Ім'я: Населений пункт:
    По батькові: Номер телефону:
    Ел. пошта: Компанія:
      Пароль: Посада:
      Повторіть пароль: Рік початку роботи:
      Фото:
      З правилами розміщення об'єктів погоджуюсь

      Забули пароль?

      Вкажіть ел. пошту — ми надішлемо Вам новий пароль для входу
      Ел. пошта:

      Проблема на сайті

      Закрити
      Ваш e-mail:
      (необов'язково)
      Розкажіть нам, що сталось

      без комісії Медова, 6К — Продається будинок

      (г. Золочив, Золочевский район)

      95000 $

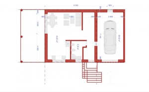
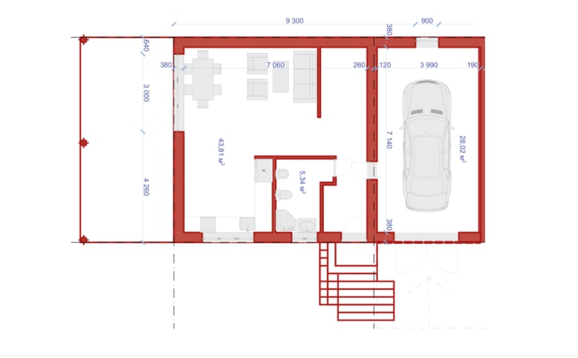
      Загальна площа: 138.5 кв.м

      Площа ділянки: 2.7 сот

      Кімнат: 3

      К-ть поверхів: 2

      Продаж сучасного котеджу в Золочеві!

      Площа: 138,5 м2, ділянка: 0,0271 га.

      Дуплекс у котеджному комплексі «Медовий» забезпечений безперервною подачею води, газу та електроенергії. Оснащені відкритою терасою – це повноцінний третій поверх під відкритим небом. На терасі можна створювати лаунж-зону для відпочинку, занять спортом, проведення свят чи інших заходів. Котеджі відрізняються продуманим інтер’єром: високі стелі та панорамні вікна із чудовими краєвидами на місто. Для сімейних котеджів передбачений гараж у будинку на один автомобіль, пергола (садове накриття, яке з’єднане між собою поперечними брусами для захисту проходу від палючого сонця), подвір’я та вільна прибудинкова зона, яка засаджується зеленим газоном, чагарниками і деревами. Важливо: У кожному будинку знаходиться внутрішня бетонна перегородка. Вона створює усі умови затишку для уникнення шуму із сусідніх будинків. Будинки здаються із поштукатуреними стінами. В технології будівництва не використовується матеріал дерево.

      Вартість: 95 500 $.

      Надіслати скаргу

      Закрити
      Поскаржитися на об'єкт «Медова, 6К (г. Золочив, Золочевский район)»
      Ваш коментар:(Необов'язково)
      Ваша скарга буде надіслана ріелтору, що розмістив об'єкт, а також адміністрації сайту АФНУ.
      Ваше ім'я:
      (Обов'язково)
      Ваш e-mail для відповіді:
      (Обов'язково)

      Коментарі