Вхід на сайт

Ел. пошта:
Пароль:

Реєстрація на сайті

Призвіще: Область:
Ім'я: Населений пункт:
    По батькові: Номер телефону:
    Ел. пошта: Компанія:
      Пароль: Посада:
      Повторіть пароль: Рік початку роботи:
      Фото:
      З правилами розміщення об'єктів погоджуюсь

      Забули пароль?

      Вкажіть ел. пошту — ми надішлемо Вам новий пароль для входу
      Ел. пошта:

      Проблема на сайті

      Закрити
      Ваш e-mail:
      (необов'язково)
      Розкажіть нам, що сталось

      Першотравнева — Продається квартира

      (г. Кривой Рог, Центрально-Городской район)

      44500 $

      Загальна площа: 81 кв.м

      Жила площа: 52 кв.м

      Площа кухні: 8 кв.м

      Кімнат: 4

      Поверх: 4

      К-ть поверхів: 5

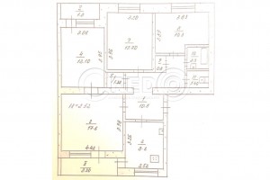
      Продаж 4-х кімнатної квартири по вул. Першотравнева

      Про квартиру:
      - 4-х кімнатна квартира розташована на 4/5поверхового будинку (не кутова, не прохідна, двостороння)
      - Загальна площа 81.3кв.м.,
      - житлова 52.7кв.м.,
      - кухня 8.2кв.м.,
      - висота стін - 2.52м.

      Особливості:
      - Просторий хол, два балкони, санвузол окремий, дві комори.
      - Затишний двір, доброзичливі сусіди, чистий під’їзд.

      Комунікації:
      - газ
      - центральний водопровід, каналізація
      - електрика

      Локація:
      Будинок розташований в Центрально-міському районі поряд з парковою зоною Ф.Мершавцева та Гданцівський.

      Ціна 44 500$

      За будь-якими питаннями за цією або схожими пропозиціями звертайтесь за номером телефону, де вам відповість наш ріелтор 098 985 09 08.

      З повагою, команда Credo!

      Надіслати скаргу

      Закрити
      Поскаржитися на об'єкт «Першотравнева (г. Кривой Рог, Центрально-Городской район)»
      Ваш коментар:(Необов'язково)
      Ваша скарга буде надіслана ріелтору, що розмістив об'єкт, а також адміністрації сайту АФНУ.
      Ваше ім'я:
      (Обов'язково)
      Ваш e-mail для відповіді:
      (Обов'язково)

      Вам также могут подойти

      мкрн. Сонячний (г. Кривой Рог, Саксаганский район) - Продається квартира, 49000 $ - АФНУ

      Оновлено: 11 серпня

      Розміщено: 24 жовтня 2023

      Продається квартира

      5 кімн., площа 115/-/-, поверх 4/17

      г. Кривой Рог, мкрн. Сонячний

      49000 $

      Літвинова Ірина Вікторівна

      Продаж 5тикімнатної квартири (3 + 2) "Сонячний"

      Маємо цікаву пропозицію з продажу комфортного житла для великої родини!
      Мікрорайон "Сонячний". 4 поверх 17поверхового будинку. 5тикімнатна квартира, створена з двох окремих квартир,…

      Детальніше

      ул. Кропивницкого (г. Кривой Рог, Жовтневый район) - Продається квартира, 45000 $ - АФНУ

      Оновлено: 14 серпня

      Розміщено: 7 липня

      Продається квартира

      4 кімн., площа 80/61/7, поверх 3/3

      г. Кривой Рог, ул. Кропивницкого

      45000 $

      Літвинова Ірина Вікторівна

      Пропонуємо до продажу 4кімнатну переплановану "сталінку"
      в районі "Гірник", вулиця Кропивницького,54.
      В процесі реконструкції маємо об'єднану з кухнею столову
      зону з балконом. Дві окремі спальні, простора вітальня.
      Додатковий плюс до…

      Детальніше

      Коментарі